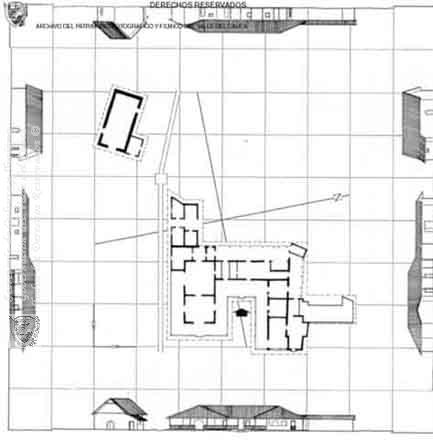
Plano arquitectónico de la hacienda Hatoviejo
Cargando...
Archivos
Fecha
1900-01-01
Autores
Título de la revista
ISSN de la revista
Título del volumen
Editor
Biblioteca Departamental Jorge Garces Borrero
Resumen
Descripción
Plano arquitectónico de la hacienda Hatoviejo. Yotoco. s.f.
El Archivo del Patrimonio Fotográfico y Fílmico del Valle del Cauca es responsabilidad de la Biblioteca Departamental del Valle Jorge Garcés Borrero, por convenio de cooperación suscrito con la Secretaria del Cultura Departamental, con el fin de aunar esfuerzos para su conservación, preservación y divulgación del Archivo entre la comunidad Vallecaucana, especialmente entre los estudiantes e investigadores que visitan la Biblioteca, propiciando el su uso y consulta permanente. La universidad Icesi es un colaborador en el proceso de difusión, facilitando la tecnología que permite la consulta de las imágenes.
El Archivo del Patrimonio Fotográfico y Fílmico del Valle del Cauca es responsabilidad de la Biblioteca Departamental del Valle Jorge Garcés Borrero, por convenio de cooperación suscrito con la Secretaria del Cultura Departamental, con el fin de aunar esfuerzos para su conservación, preservación y divulgación del Archivo entre la comunidad Vallecaucana, especialmente entre los estudiantes e investigadores que visitan la Biblioteca, propiciando el su uso y consulta permanente. La universidad Icesi es un colaborador en el proceso de difusión, facilitando la tecnología que permite la consulta de las imágenes.
Da clic sobre la imágen para abrir la galería.
Palabras clave
Citación
s. n. (1900). Plano arquitectónico de la hacienda Hatoviejo & 503089. YOTOCO: Biblioteca Departamental Jorge Garces Borrero.
